지은지 60~70 년은 되어 보이는 듯한 구옥을 리모델링 하기로 했습니다.
하천 제방공사로 원래의 높이에서 3m는 낮아진듯한 형태!
도로에서 보면 지붕만 보이는 집이지만 할아버지, 아버지와의 추억이 살아있는 한필지 구옥 3동을 가능한 형태를 살려 단열과 구조적 안정성에 주안점을 두고 고쳐보려 합니다.

귀촌 결정을 하고 군청에 슬레이트 철거 신청을 하니 한달 반만에 슬레이트를 철거하고
6.25의 참상이 드러난 듯한 모습입니다.




구조적 안정성과 사용의 효율성, 단열문제를 어떻게 해결할 것인가? 심각한 모습이군요.


구옥의 아름다움을 살리기 위해 들보와 기둥, 서까래는 가능한 살려보기로 결정합니다.

곧 다가올 장마를 대비하여 큰 천막을 덮고 내부 천정과 불 필요한 부분들, 바닥을 철거하기로 합니다.


바닥을 뜯어보니 원래의 구들 바닥이 낮았던 건지..
아니면 마당을 높였던 건지는 몰라도 확보할 공간이 별로 없어 보입니다.




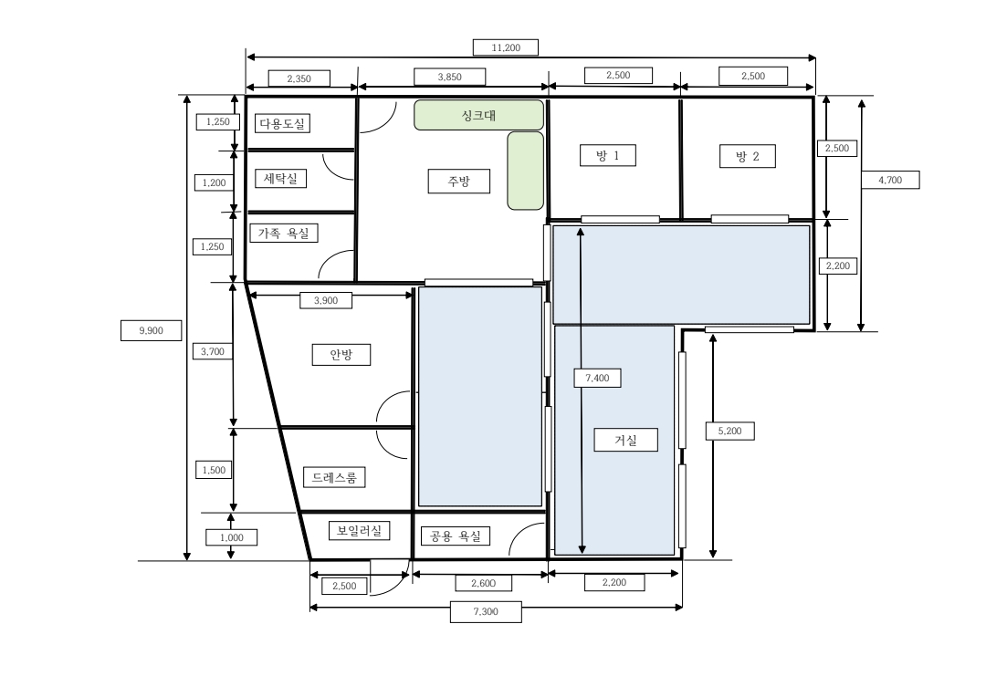
건축주의 요구사항을 최대한 반영하여
1차 평면도를 그려 건축주와 협의에 들어갑니다.

장마기간 내내 철거만 해야 할것 같습니다,








기존의 흙 천정을 뜯어내내 상량문이 나오는 군요. 단기 4294년이니 서기로 1961년...
지은지 63년이 되었군요
천정을 뜯어내고 노출 서까래로 가려고 하는데 뜯어보니 못생긴 서까래만 골라 얹었네요.
흙을 바르려면 고생 좀 하겠습니다.



우선 오, 폐수 배관을 합니다. 옆집과의 이격거리가 좁아 벽을 세운다음엔 어려울것 같습니다.



예전에 얼기설기 확장 했던 부분을 뜯어내고 경량 철구조로 보강하고 패널 공사를 하려 합니다.
심벽 8cm 두께의 벽으로 되어 있어 겨울을 나는데에는 삼한 문제가 있어 보입니다.
단열을 주 목적으로 좁은 방도 확장할겸 외벽을 샌드위치 패널 100m/m를 2중으로 시공하고 이중창에 22m/m 복층유리를시공할 계획입니다. 현장 상황 상 레미콘을 받기가 어려워 시멘트를 직접 비벼 수작업으로 바닥 공사를 하고 있습니다.
정말 무더운 여름입니다.





벽은 100m/m 패널을 2중으로 교차 시공하고 지붕은 200m/m 패널로 시공하였습니다.
지붕 마감은 건축주와 상의 후 돌기와를 시공하고 싶었으나 자재 수급의 어려움과 높은 가격으로 인해 이중싱글로 가기로 하였고 벽체 외부는 시멘트 보드에 스타코를 시공하고 도리 및 기둥을 시공하여 한옥의 멋을 살려 볼 예정입니다.





훼손된 도리와 기둥을 보강 보수하고..




확장한 부분은 편백루바와 서까래를 걸어 한옥의 멋을 살려봅니다.






무너진 벽은 벽돌을 쌓아 보강하고 천정을 뜯어 내어 서까래가 들어난 부분엔 황토흙을 바릅니다.
천정을 시공하여 보이지 않던 부분이라 지붕의 개판 부분이 진짜 개판이었습니다. 그래서
황토를 한번에 바를수 없어 3번에 나누어 초벌 재벌 삼벌로 시공하였습니다.













마직막으로 핸디코트로 마감을 하고 건축주께서 벽은 연한 아이보리, 천정은 백색으로 친환경 페인트를 칠하고 싶다고...


지붕에 물받이와 박공을 시공하고..



건물과 건물사이 지붕으로 덮여 있어 어두웠던 부분엔 강화유리로 채광을 하고..






거실 욕실...





한지로 도배를 하고 천정에는 백색 퍼티를...
일부 가구를 들이고 나니 제법 사람 사는 집 같아 보이네요.



이중 싱글로 너와지붕의 멋을 내어 시공하고..


외벽에 CRC 보드로 하지 작업을 한 후....

본 타일로 외벽을 바르고 건축주가 원하는 색상으로 도색 작업 예정.


창문과 출입구에 문선을 두르고..
도색작업은 다음으로 연기하고 옆 공장으로 사용하던 건물을 사무실로 개조 들어갑니다.

블록 벽체만 남아있던 건물에 골조를 세워 보강하고 지붕을 씌웁니다.




채광이 부족할지 몰라 천정에 채광창을 내고..



틈새는 꼼꼼히 우레탄 폼으로 충진하고..

쓸모없는 벽체는 철거후 공간을 재 정비합니다.

폐기물을 들어내고 상수도 인입을 시작합니다.
기존 무분별하게 연결되고 낡은 상하수도 배관을 새 배관으로 알기쉽게 교체 정리합니다.
















춥고 길었던 겨울이 지나 새 봄을 맞아 공사를 재개 하였습니다.
난방배관을 한 후 방통을 쳐야 하지만 세번째 건물 숙소동을 수리한 후에 함께 공사를 진행하려 합니다.




창고처럼 쓰고있던 오래 된 방에 화장실과 주방을 만들고 새로운 숙소 동을 만들려고 합니다.




방통을 치고...






책꽃이도 짜서 설치하고..



























공사는 쭈욱 진행됩니다....
'낡은 집 수리 및 리모델링, 리노베이션' 카테고리의 다른 글
| 보은군 탄부면 선룸 공사 (0) | 2024.07.07 |
|---|---|
| 충주시 세경아파트 5~9번째 리모델링 (0) | 2021.07.08 |
| 충주시 세경아파트 네번째 리모델링 (0) | 2021.06.04 |
| 완주군 삼례읍 교회 리모델링 공사 (0) | 2021.05.08 |
| 속리산면 낡은 슬라브집 지붕개량공사 (0) | 2021.05.01 |